Uplift

Instructor
Karen Seong and Simon McKenzie

Year
2021

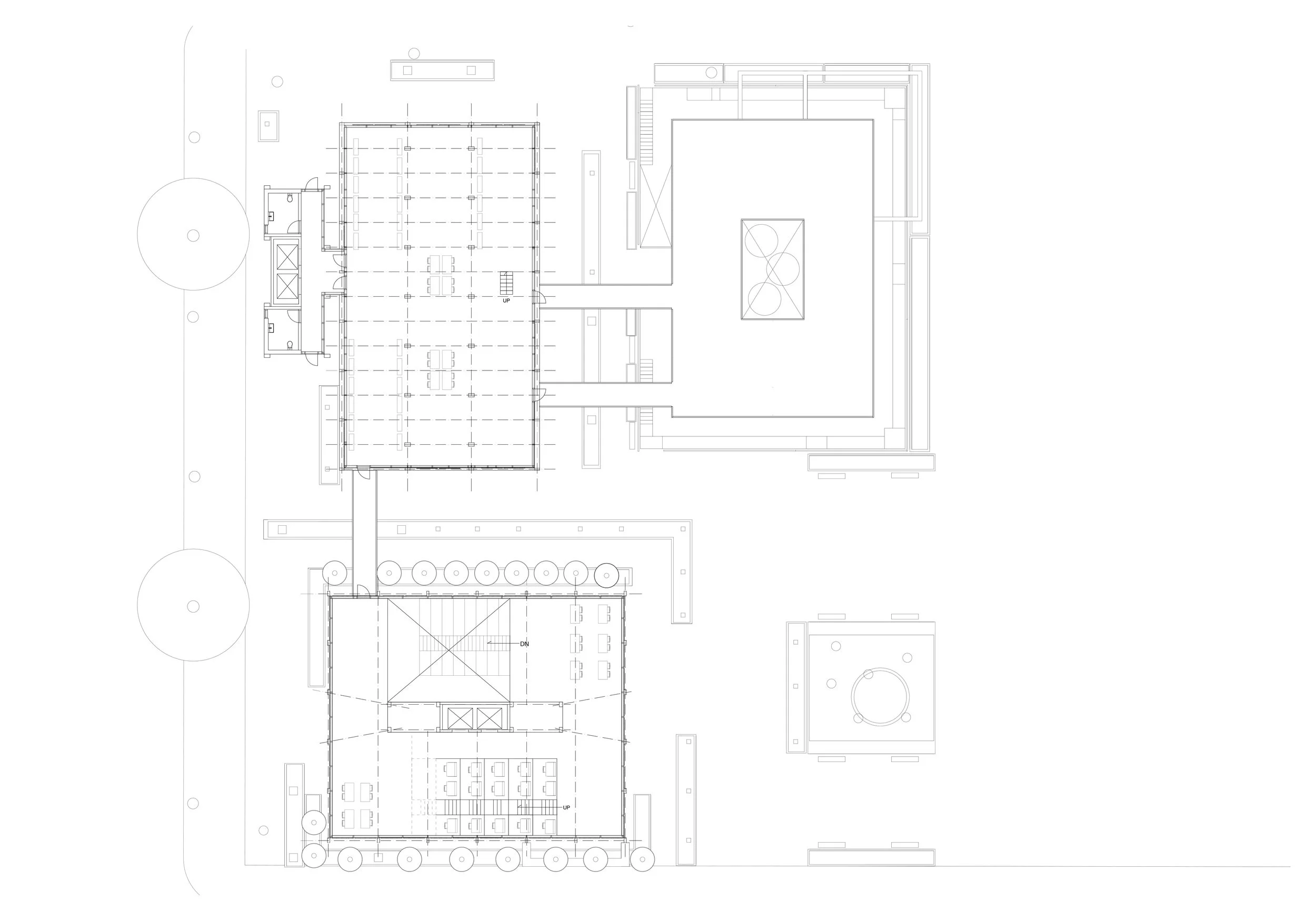
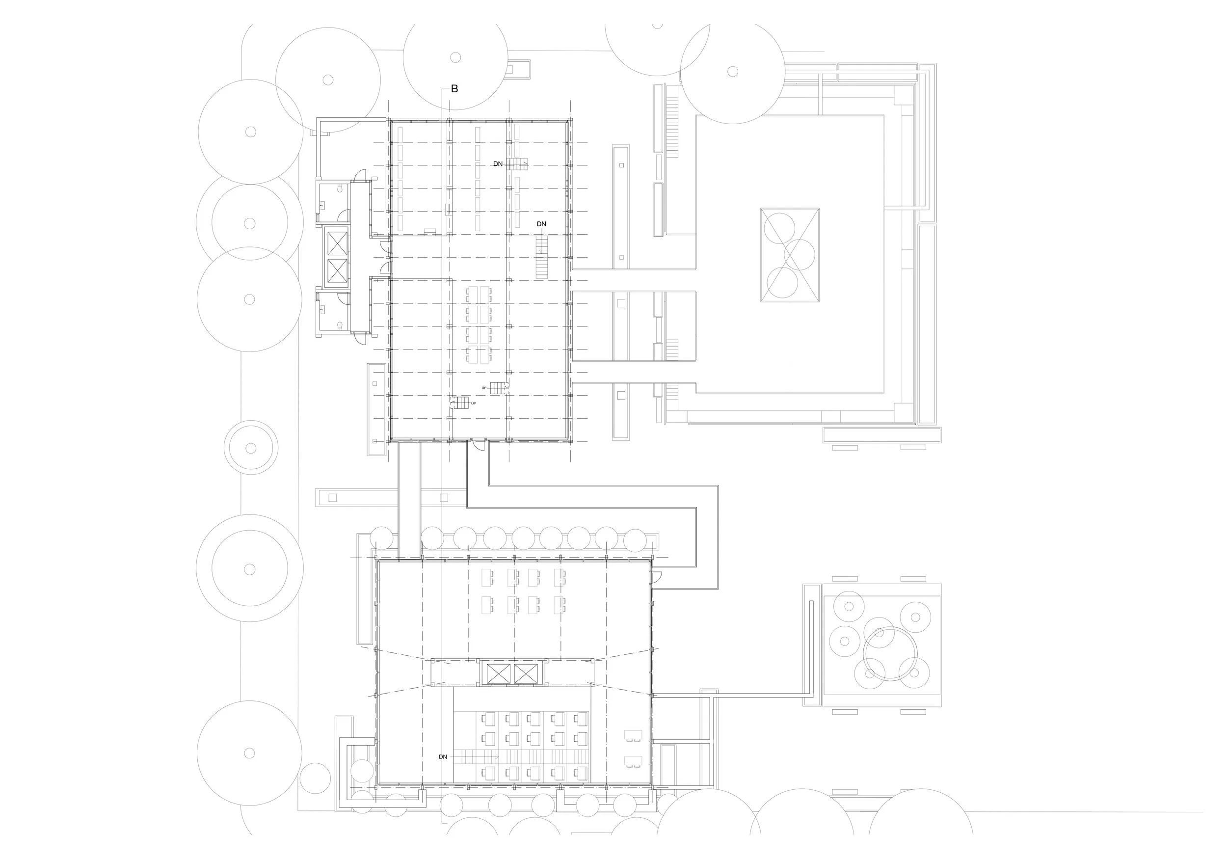
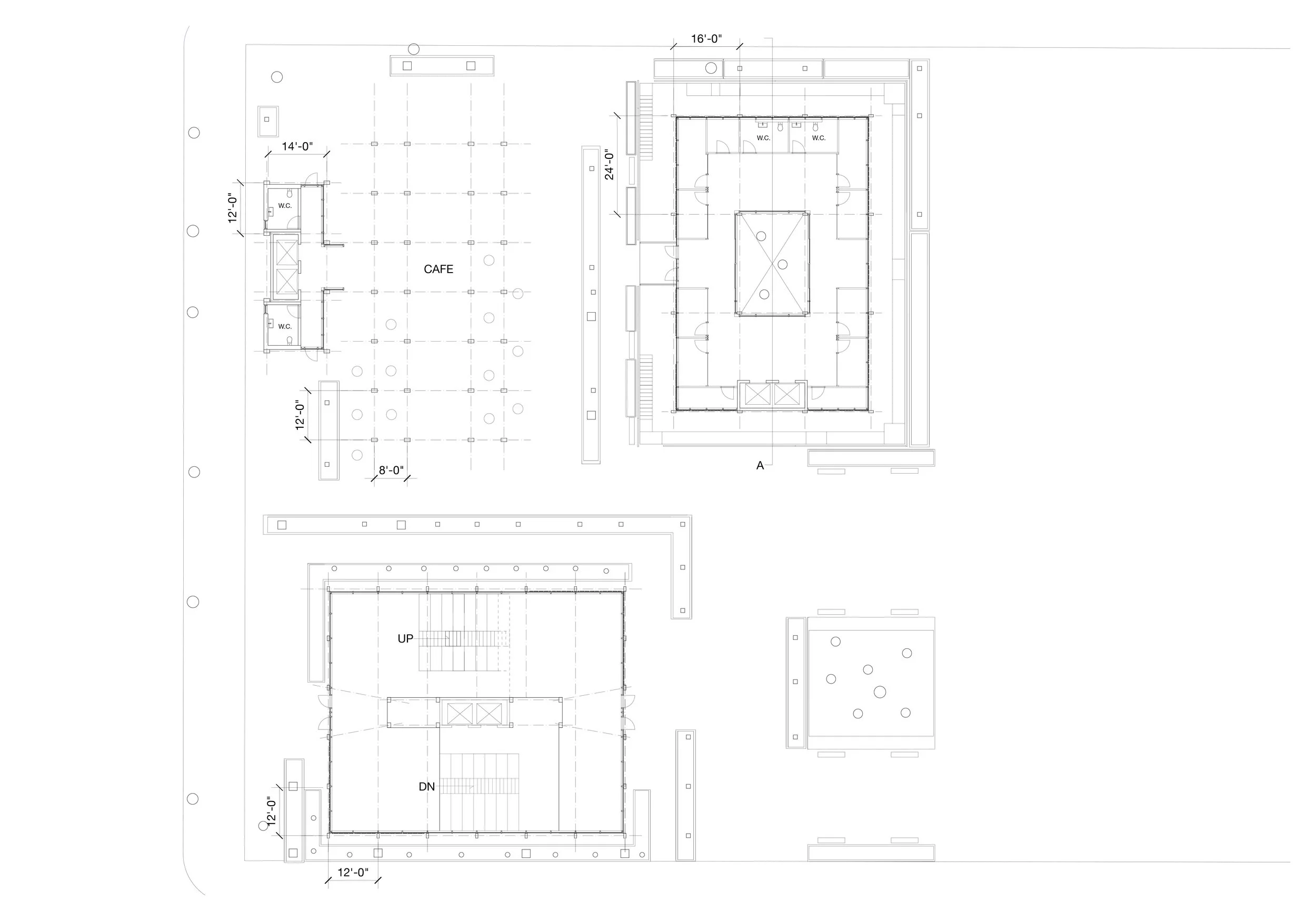
Uplift is designed as a triptych exploring the theme of financial education. The three buildings offer users separate approaches of learning based on their individual learning styles. For example, it features a library for users that prefer to self-educate; a re-imagined lecture and classroom building for users who able to learn in a group settings of various sizes; And lastly, a one-on-one meeting building for those that require more personal attention to learning. Collectively, Uplift is meant to provide assistance to those seeking to improve their financial standing.

Previous
Previous

The Terror

Next
Next

Stella